南逆井1丁目
【45坪越え土地】限定1区画!★南道路に面していて、日当たり良好です★
広々したスペースでこだわりの新生活をスタートしませんか?
これから注文住宅をご検討の方、間取りのご相談もお気軽にどうぞ!☆
ローンシミュレーションこの物件を購入した場合の、月々の支払い価格の一例です。借り入れを保証するものではございません。
- 返済期間
-
- 金利
-
- ボーナス時の増額(1回分)
-
- 借入金額:
-
- 頭金:
-

- 毎月の返済額:
(※元利均等方式 金利5.00%まで ※返済年数5~50年まで入力できます)
(※ボーナスは年2回で計算しています。1000万円まで入力できます)
(※物件購入時、その他諸費用が発生する場合がございます)
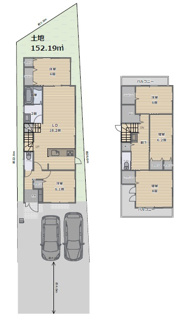
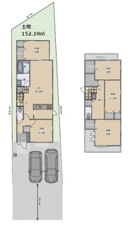
物件概要
【売地】 物件番号:91051987 情報更新日:2026年04月16日 次回更新予定日:2026年04月30日| 所在地 | 千葉県柏市南逆井1丁目13-8 | ||
|---|---|---|---|
| 交通 | |||
| 価格 | 1,450万円 | ||
| 土地の敷金/保証金 | -/- | 借地料/借地期間 | -/- |
| 土地面積(坪数) | 152.19㎡(46.03坪) | 坪単価 | 31.5万円 |
| 私道負担面積/セットバック | -/要 | 高圧線下面積 | - |
| 傾斜地部分面積 | - | 路地状敷地 | - |
| 土地権利 | 所有権 | 接道状況 | 一方(南 公道) |
| 都市計画 | 市街化区域 | 用途地域 | 第一種低層住居専用 |
| 建築条件 | 無 | 地目/地勢 | 山林/- |
| 建ぺい率 | 50% | 容積率 | 100% |
| 総区画数 | - | 販売区画数 | - |
| 国土法届出要否 | 不要 | その他の法令上の制限 | - |
| 取引態様 | 専任媒介 | 現況 | 古家有 |
| 引渡時期 | 相談 | 引渡条件 | 更地渡 |
| 最適用途 | - | ||
| 物件番号 | 91051987 | 取引条件の有効期限 | 2026年04月30日 |
| 設備条件 |
|
||
| 備考 | ■解体更地渡し | ||
| 取扱会社 |
|
||
※地図上に表示される物件の位置は付近住所に所在することを表すものであり、実際の物件所在地とは異なる場合がございます。














