柏・流山の新築戸建て|HILLS 桂友不動産 > (売買・投資)地域から探す > 柏市 > 南逆井1丁目

南逆井1丁目

南逆井1丁目

所在地 交通
千葉県柏市南逆井1丁目13-8

京成電鉄松戸線五香」駅 徒歩24分

物件情報

【完成予想図】 | 南逆井1丁目 | 建築プラン例 イメージ

※写真や図と実際の現状とが異なる場合は現状を優先させていただきます

  • 【完成予想図】 | 南逆井1丁目 | 建築プラン例 イメージ
  • 【完成予想図】 | 南逆井1丁目 | 建築プラン例 イメージ
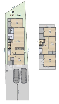
  • 【参考プラン】 | 南逆井1丁目 | 建築プラン例 間取り
  • 【前面道路含む現地写真】 | 南逆井1丁目 | ご覧頂き誠にありがとうございます!お住い探しは『南流山』駅徒歩2分、地域密着30年の桂友不動産にお任せください!お客様に寄り添った対応を心がけております。ご都合に合わせて時間外対応も可能です!
  • 【外観】 | 南逆井1丁目 | まずは資料だけ、というお客様は「資料をもらう(無料)」をタップ!
  • 【外観】 | 南逆井1丁目
  • 【外観】 | 南逆井1丁目
  • 【外観】 | 南逆井1丁目
  • 【前面道路含む現地写真】 | 南逆井1丁目
  • 【前面道路含む現地写真】 | 南逆井1丁目

※ご覧になりたい写真をクリックすると
拡大されて表示されます。

コメント【完成予想図】建築プラン例 イメージ

情報の見方

南逆井1丁目 の物件概要

【売地】

所在地 千葉県柏市南逆井1丁目13-8
交通
価格 1,450万円 総区画数 -
土地面積 152.19㎡ 開発面積 -
坪数 46.03坪 坪単価 31.5万円
種別 売地 地目/地勢 山林 /-
取扱会社
  • 桂友不動産株式会社
  • 千葉県流山市南流山1丁目4-2 
  • TEL:04-7137-7133
  • 千葉県知事 (9) 第10563号
  • (一社)千葉県宅地建物取引業協会

※地図上に表示される物件の位置は付近住所に所在することを表すものであり、実際の物件所在地とは異なる場合がございます。

南逆井1丁目 へのお問い合わせは 桂友不動産株式会社まで

04-7137-7133

〒270-0163

千葉県流山市南流山1丁目4-2 

9:30~19:00  定休日: 水曜日

お問い合わせ

南逆井1丁目の販売区画情報

価格 建ぺい率/容積率 土地面積 坪数 詳細 検討リスト
1,450万円 50%/ 100% 152.19㎡ 46.03坪 詳細を見る 追加する

南逆井1丁目へのお問い合わせ

必要項目の入力

0/0
必須項目完了

確認画面へ
お進み下さい

0/0
必須項目完了

確認画面へ
お進み下さい

必須

お名前

任意

メールアドレス

必須

電話番号

必須

都道府県

必須

市区町村

任意

番地

任意

建物名/部屋番号

任意

内容

【南逆井1丁目へのお問い合わせ】

利用規約及びプライバシーポリシーを必ずお読みください。左記内容に同意いただいた場合は、確認画面へお進み下さい。

未入力項目があります

▼ご希望の物件をお探しします
物件リクエスト

おすすめ物件

柏市南逆井4丁目の画像

柏市南逆井4丁目

千葉県柏市南逆井4丁目

京成電鉄松戸線「五香」駅 徒歩18分

-

会社概要

会社画像
桂友不動産株式会社
  • 〒270-0163
  • 千葉県流山市南流山1丁目4-2 
  • TEL/04-7137-7133
  • FAX/04-7137-7134
  • 千葉県知事 (9) 第10563号

トップへ戻る